4006 E Mercer Way

Mercer Island, WA

main logo

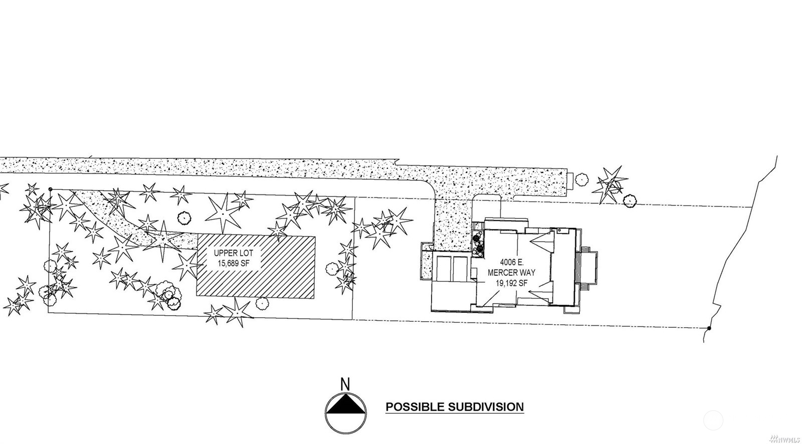
Welcome home to Mercer Island Waters Edge- an exquisite opportunity to create your own lake estate on 80 feet of no bank lakefront. Survey, engineering, plans, permitting complete (included with sale) and ready to build new ~4,900sf, 4 bedroom, 6 bathroom residence with 4 car garage on .83 acres. Enjoy estate sized lot, add tennis court or subdivide into two lots. Newly constructed dock boasts deep water moorage and serves as perfect launch point for recreation, cruises and longer excursions. Current 3,100sf four bedroom charming bungalow was constructed in 1908 and could be remodeled to recapture its sense of casual waterfront retreat. Ideally located on the north-end of the Island for easy commutes to Seattle and the Eastside.

SOLD FOR:

$4,500,000

MLS# 2159581

Represented by

Scott Richards

Windermere Real Estate / East, Inc.

Stephanie Richards

Windermere Real Estate / East, Inc.

features

  • Bedrooms: 4
  • Full Baths: 1
  • 3/4 Baths: 1
  • Square Feet: 3,100
  • EXTERIOR TYPE: Wood
  • FIREPLACE: 2 , Gas
  • PARKING TYPE: Attached Garage
  • ROOF TYPE: Composition

location